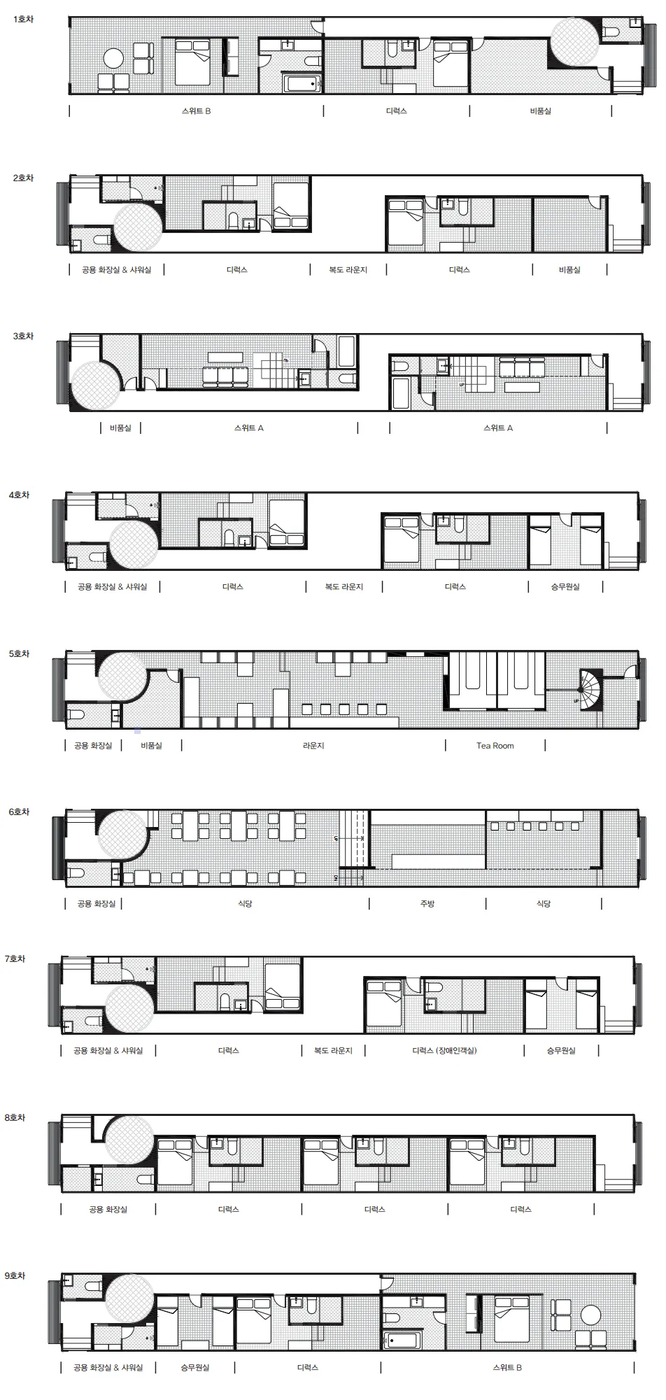
현 해랑(관광열차) 폐차 후 등장하는 신 해랑 조감도
안토니오밥다됐쓰
0
106
2시간전
객실
라운지
현재 해랑열차는 노후화로 28년 폐차 예정.
코레일에서 상당히 흑자인 노선이라 공들여서 준비중.
스탠다드 룸 없는 1호차 기준으로 현 객단가가 140만원, 54인인데
약 40인(성인30, 어린이 11)으로 줄여서 진행
개인적으로
디럭스 인당 140 언저리
(3인(성인2 어린이 1, 13m², 샤워부스) 420 만원정도)
스위트 인당 350 ~ 600
(스위트룸 A (4인, 36m², 복층) 1400, 스위트룸 B (2인, 31m²) 1200)
보고있는데
정확히는 가격 나와봐야 알듯?
디럭스는 가격 많이 올려도 500이고
스위트에서 확 올릴 것 같음..
















1
2
3